Duplex
Le Houlme
|
76770
185 000 €
TYPE DE BIEN
Appartement
TYPE D'OFFRE
Vente
SURFACE HABITABLE (M²)
104.05
PIÈCES
4
CHAMBRES
3
SALLE DE BAINS
1
ASCENSEUR
Non
BALCON
Oui
PARKING / STATIONNEMENT
2
Description du bien
ID de la propriété :
VA3052
Diagnostics énergétiques
Consommation d’énergie kWh/m²/an : 184
Classe énergétique :D
Indice d'émission de gaz à effet de serre
Emissions de gaz à effet de serre (GES) kg CO₂/m²/an: 26
Classe GES: C
Vous rêvez d’un bien unique, alliant charme historique et volumes généreux ?
Ne cherchez plus, cet appartement lumineux sur deux étages situé à la limite de Notre-Dame-de-Bondeville est fait pour vous !
Découvrez ce superbe duplex niché aux 2e et derniers étages d’un Château du 19e siècle, entouré d’un parc arboré, clos et sécurisé. Un cadre rare, paisible et verdoyant, à proximité directe de Rouen.
Cet appartement de caractère de 4 pièces offre plus de 104 m² habitables, une cheminée fonctionnelle ainsi qu’une magnifique terrasse de 90 m² exposée sud-ouest.
Idéal pour les amateurs d’espaces lumineux et de biens atypiques. Le stationnement est facilité grâce à deux places privées, complétées par une cave.
L’appartement est disposé comme suit :
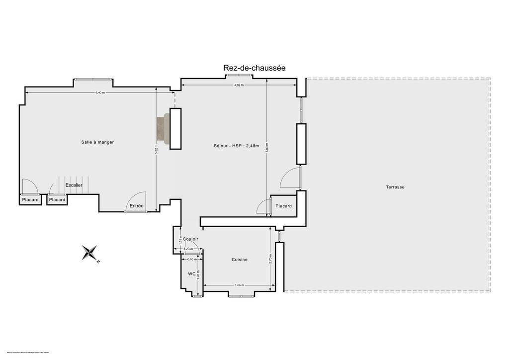
Au REZ-DE-CHAUSSÉE :
• Une entrée/séjour/salle à manger ouverte de plus de 55 m² avec cheminée fonctionnelle
• Une cuisine indépendante
• Un WC séparé
• Une terrasse exposée sud-est d’environ 90 m²
À l’étage :
• 3 chambres lumineuses
• 1 salle d’eau
• 1 salle de bain avec WC
Atouts de ce bien :
Charme d’un château du 19e siècle | Terrasse exceptionnelle de 90 m² | Parquet & cheminée fonctionnelle | Double vitrage | Chauffage individuel gaz | Environnement verdoyant & sécurisé | 2 places de parking | Cave | Transports proches (Bus F4, TEOR T2, Gare Malaunay-Le Houlme)
Localisation/Accès :
• Bus F4 à proximité immédiate
• TEOR T2 à 15 min à pied
• Gare de Malaunay–Le Houlme à 20 min à pied
• Rouen centre : 20 min en voiture
• Barentin/A150 : 10 min
EXCLUSIVITÉ
« Les informations sur les risques auxquels ce bien est exposé sont disponibles sur le site Géorisques : www.georisques.gouv.fr »
Pour organiser une visite, contactez : Mathieu DESNOUES inscrit au RSAC de ROUEN n° 992 099 739 / Agence Trybe Immobilier / O6.79.42.17.54 / mathieu.desnoues@trybe-immo.fr
Les informations sur les risques auxquels ce bien est exposé sont disponibles sur le site www.georisques.gouv.fr
Ne cherchez plus, cet appartement lumineux sur deux étages situé à la limite de Notre-Dame-de-Bondeville est fait pour vous !
Découvrez ce superbe duplex niché aux 2e et derniers étages d’un Château du 19e siècle, entouré d’un parc arboré, clos et sécurisé. Un cadre rare, paisible et verdoyant, à proximité directe de Rouen.
Cet appartement de caractère de 4 pièces offre plus de 104 m² habitables, une cheminée fonctionnelle ainsi qu’une magnifique terrasse de 90 m² exposée sud-ouest.
Idéal pour les amateurs d’espaces lumineux et de biens atypiques. Le stationnement est facilité grâce à deux places privées, complétées par une cave.
L’appartement est disposé comme suit :
Au REZ-DE-CHAUSSÉE :
• Une entrée/séjour/salle à manger ouverte de plus de 55 m² avec cheminée fonctionnelle
• Une cuisine indépendante
• Un WC séparé
• Une terrasse exposée sud-est d’environ 90 m²
À l’étage :
• 3 chambres lumineuses
• 1 salle d’eau
• 1 salle de bain avec WC
Atouts de ce bien :
Charme d’un château du 19e siècle | Terrasse exceptionnelle de 90 m² | Parquet & cheminée fonctionnelle | Double vitrage | Chauffage individuel gaz | Environnement verdoyant & sécurisé | 2 places de parking | Cave | Transports proches (Bus F4, TEOR T2, Gare Malaunay-Le Houlme)
Localisation/Accès :
• Bus F4 à proximité immédiate
• TEOR T2 à 15 min à pied
• Gare de Malaunay–Le Houlme à 20 min à pied
• Rouen centre : 20 min en voiture
• Barentin/A150 : 10 min
EXCLUSIVITÉ
« Les informations sur les risques auxquels ce bien est exposé sont disponibles sur le site Géorisques : www.georisques.gouv.fr »
Pour organiser une visite, contactez : Mathieu DESNOUES inscrit au RSAC de ROUEN n° 992 099 739 / Agence Trybe Immobilier / O6.79.42.17.54 / mathieu.desnoues@trybe-immo.fr
Les informations sur les risques auxquels ce bien est exposé sont disponibles sur le site www.georisques.gouv.fr
• NOTRE AGENCE •
TRYBE
IMMOBILIER
Pour plus d'information et organiser une visite, contactez notre agence :
Adresse : 7 Rue Verte, Rouen
Téléphone bureau : 02 76 78 10 64
Email : contact@trybe-immo.fr
Prenons un caf' parlons immo'
Vous souhaitez discuter de votre projet avec un de nos agents ? Venez prendre un café dans une de nos agences pour qu’on en parle !
Estimez votre bien en moins de 2 minutes
Vous envisagiez de vendre ou d’acheter un bien ? Obtenez une évaluation professionnelle et fiable de votre propriété en moins de 2 min.